שני בן סימון אדריכלית
הנדסאית אדריכלות
4 עוקבים
1 מועדפים
צור קשר דברו איתי עכשיו!   072-3930562 072-3930562
פרטי הפרויקט
שנה:
2022
כתובת:
בית נחמיה
סטטוס:
סיום
גודל:
200 מ"ר
שם צלם:
מירב פלברג
שם אדריכל:
שני אלפי בן סימון
שם מעצב פנים:
שני אלפי בן סימון

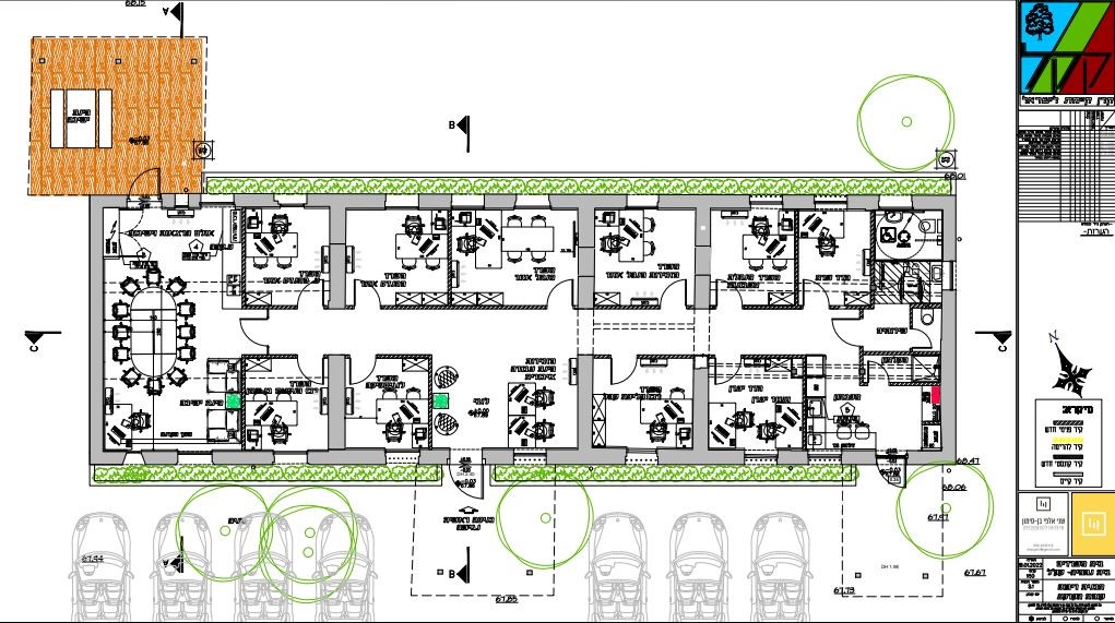
משרדים קק"ל בית נחמיה

מדובר על מבנה לשימור של 200 מ"ר שמחולק לשלושה חללים נפרדים שאינם מנוצלים כלל. לאחר שפתרנו את הנושא הקונסטרוקטיבי שהיה מורכב כי רצינו שכל שלושת החללים יהיו באותו המפלס כחלל אחד גדול, יכולנו להתמקד בתכנון הפנים שכלל לפי הפרוגרמה 10 משרדים, חדר ישיבות מרווח, מטבחון ולובי מזמין.